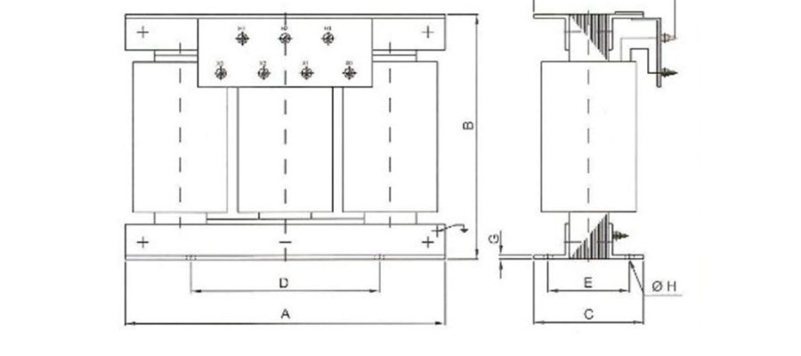
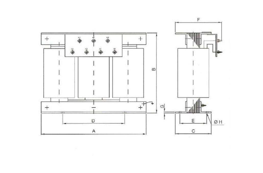
Transformador Trifásicos/Monofásicos de baixa tensão para Painéis IP00

Especificações Técnicas:

Características Gerais:

Especificações Técnicas:
-Potencias de até 1500 Kva Tensões especificadas pelo cliente Frequência 50 ou 60 Hz
-Classe de isolação: 0,6kV, 1,1kV, 3,6kV, 7,2kV Classe térmica: B (130ºC), F (155ºC) ou H (180ºC)
-Elevação de temperatura: B (80ºC), F (105ºC) ou H (155ºC) Resfriamento ar natural (AN)
-Ligação em parafusos ou barra de latão Grau de proteção IP 00
-Normas de fabricação: ABNT 5356 – 11 / IEC 742 Normas de ensaios: ABNT 5356 – 11 / IEC 742

Acabamento:
-Bobinas impregnadas com verniz e ferragens com pintura Preta ou especificada pelo cliente.

Enrolamento:
Em alumínio eletrolítico com o mínimo de 61,5% de IACS, material esmaltado ou ainda encapado com isolantes de classes B, F, OU H.
Isolamento entre as camadas do enrolamento: Poliéster, Mylar ou Nomex.
Verniz isolante Classe B ou F.

Núcleo:
-O núcleo utilizado em nossos transformadores é de chapa de aço silício de grão orientado ou de aço silício com grão não orientado, com baixa
indução garantindo ao transformador uma ótima performance com um
baixo nível de ruído e baixas perdas.

Com a BELO VOLT Transformadores, você tem a certeza de estar contratando uma empresa que não só entende as necessidades do seu negócio, mas que também entrega soluções inovadoras e de alta qualidade, assegurando o pleno funcionamento dos seus transformadores e sistemas elétricos.

©2025. Belo Volt Minas Energia Comércio e Locação de Equipamentos LTDA | Todos os direitos reservados.